Verkocht:Banckertstraat 39, 4535 AH Terneuzen - Foto
Verkocht
+15

Banckertstraat 39 4535 AH Terneuzen

  • Appartement
  • 4 kamers
  • 3 slaapkamers
  • 1 badkamers
  • Bouwjaar 1972
  • 87 m² gebruiksoppervlakte
  • C Energielabel C

Beschrijving

Ruim appartement met berging in geliefde wijk Katspolder

Op zoek naar een royaal appartement op een fijne locatie? Dit lichte en ruime appartement op de 2 verdieping van het complex aan de Banckertstraat biedt alles wat je nodig hebt. Gelegen in de rustige en populaire wijk Katspolder, met alle voorzieningen binnen handbereik.

De locatie is uitstekend gelegen op loopafstand van winkelcentrum Zuidpolder voor je dagelijkse boodschappen en dichtbij de Otheense Kreek en de kinderboerderij, perfect voor een ontspannen wandeling of een uitstapje met kinderen. Het complex beschikt over een afgesloten centrale entree met lift, wat zorgt voor extra gemak en veiligheid.

De woning is grotendeels voorzien van kunststof kozijnen met dubbele beglazing. Het zonnige balkon van 11,30 m² is ideaal gesitueerd, waardoor je hier vrijwel de hele dag van de zon kunt genieten.

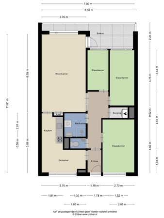
Je betreedt het appartement via de galerijzijde, waar een afgesloten tochtportaal toegang biedt tot de hal en de keuken. De keuken is voorzien van een eenvoudig keukenblok , een uitstekende basis om naar dit verder naar eigen smaak te moderniseren.

De woonkamer is ruim en licht en biedt directe toegang tot het balkon. De badkamer is eenvoudig voorzien van een wastafel en douche. Ook de wasmachineaansluiting bevindt zich hier.

Vanuit de hal zijn drie slaapkamers bereikbaar (circa 12 m², 10 m² en 7 m²), evenals een apart toiletruimte. De slaapkamers bieden voldoende ruimte voor een bed, kast en/of werkplek. Op de begane grond is een privéberging aanwezig, ideaal voor het opbergen van fietsen of andere spullen. De cv installatie is er zeer recent vernieuwd.

De maandelijkse servicekosten bedragen € 160,00 worden per 1 januari 2026 verhoogd naar €182,00.

Een ruim en praktisch appartement op een fijne plek, perfect voor starters of iedereen die op zoek is naar comfortabel gelijkvloers wonen in een rustige en goed bereikbare buurt.

Maak snel een afspraak voor een bezichtiging en ontdek of dit jouw nieuwe thuis kan worden!

Bijzonderheden

Een huis kopen of verkopen is vaak een ingrijpende gebeurtenis die je misschien maar één keer in je leven meemaakt. Het is dan ook belangrijk om te weten dat het hele proces volgens de regels verloopt. Het biedingstraject gaat via "Eerlijk Bieden", het eerste keurmerk voor makelaars dat zorgt voor een transparant en eerlijk biedproces voor zowel de verkoper als de koper. Dit geeft iedereen meteen het vertrouwen dat ze te maken hebben met een betrouwbare makelaar.

De termijn voor eventuele ontbindende voorwaarden (zoals financiering) bedraagt doorgaans 4 tot 6 weken na het sluiten van de mondelinge overeenkomst.

De waarborgsom of bankgarantie bedraagt 10% van de koopsom. De koper dient dit bedrag binnen twee weken na het vervallen van de ontbindende voorwaarden bij de notaris te deponeren.

De koper heeft altijd het recht om op eigen kosten een bouwkundige keuring te (laten) uitvoeren of andere adviseurs in te schakelen om inzicht te krijgen in de staat van het onderhoud van de woning.

Deze informatie is met zorg samengesteld, maar mochten er onvolkomenheden in voorkomen, dan kunnen hier geen rechten aan worden ontleend.

Ter bescherming van zowel de koper als de verkoper wordt uitdrukkelijk gesteld dat de koopovereenkomst pas tot stand komt wanneer zowel de koper als de verkoper de overeenkomst hebben ondertekend (het “schriftelijkheidsvereiste”).

In de koopovereenkomst wordt een niet-zelfbewoningsclausule opgenomen. Dit houdt in dat de verkoper het pand niet zelf heeft bewoond en de koper dus niet volledig geïnformeerd kan worden over eventuele gebreken of eigenschappen van de woning die de verkoper zou hebben opgemerkt als hij/zij er zelf in had gewoond. Beide partijen zijn overeengekomen dat deze eigenschappen en gebreken voor risico en rekening van de koper komen en dat bij de vaststelling van de koopsom hiermee rekening is gehouden.

Kaart

Kenmerken

Overdracht

Referentienummer
06157
Vraagprijs
€ 190.000,- k.k.
Servicekosten
€ 160,-
Inrichting
Niet gestoffeerd
Inrichting
Niet gemeubileerd
Status
Verkocht
Aanvaarding
In overleg
Aangeboden sinds
Vrijdag 6 juni 2025
Laatste wijziging
Dinsdag 18 november 2025

Bouw

Type object
Appartement, galerijflat
Woonlaag
2e woonlaag
Soort bouw
Bestaande bouw
Bouwperiode
1972
Dakbedekking
Bitumen
Type dak
Platdak
Isolatievormen
Grotendeels dubbel glas

Oppervlaktes en inhoud

Woonoppervlakte
87 m²
Woonkameroppervlakte
25 m²
Keukenoppervlakte
7,26 m²
Inhoud
285 m³
Oppervlakte externe bergruimte
6 m²
Oppervlakte gebouwgebonden buitenruimte
11,3 m²

Indeling

Aantal bouwlagen
1
Aantal kamers
4 (waarvan 3 slaapkamers)
Aantal badkamers
1 (en 1 apart toilet)

Locatie

Ligging
Aan rustige weg
In woonwijk

Energieverbruik

Energielabel
C

CV ketel

CV ketel
Intergas type Kombi Kompakt HRE
Warmtebron
Gas
Bouwjaar
2025
Combiketel
Ja
Eigendom
Eigendom

Uitrusting

Warm water
CV-ketel
Verwarmingssysteem
Centrale verwarming
Ventilatie methode
Natuurlijke ventilatie
Badkamervoorzieningen
Douche
Wastafel
Heeft kabel-tv
Ja
Heeft een lift
Ja
Beschikt over een internetverbinding
Ja
Heeft schuur/berging
Ja

Vereniging van Eigenaren

Ingeschreven bij de KvK
Ja
Jaarlijkse vergadering
Ja
Periodieke bijdrage
Ja
Reservefonds
Ja
Meer jaren onderhoudsplan
Ja
Onderhoudsverwachting
Ja
Opstal verzekering
Ja

Kadastrale gegevens

Kadastrale aanduiding
Terneuzen N 417
Omvang
Appartementsrecht of complex
Eigendomsituatie
Eigendom belast met gebruik en bewoning

Media

Plattegronden

Brochure(s) en overige bijlagen

Banckertstraat 39, 4535 AH TERNEUZEN (2) Download