Verkocht:Witte de Withstraat 35, 4535 AM Terneuzen - Foto
Verkocht
+14

Witte de Withstraat 35 4535 AM Terneuzen

  • Appartement
  • 4 kamers
  • 3 slaapkamers
  • 1 badkamers
  • Bouwjaar 1972
  • 87 m² gebruiksoppervlakte
  • D Energielabel D

Beschrijving

Op zoek naar een heerlijk ruim appartement op een fijne locatie? Dit ruim appartement met zonnig balkon in geliefde wijk Katspolder staat nu te koop!

Dit royale appartement gelegen in het complex aan de Witte de Withstraat 1-81 met eigen berging bevindt zich op de tweede verdieping van een verzorgd appartementencomplex met lift en een afgesloten centrale entree. Hier woont u rustig, comfortabel én op loopafstand van alle dagelijkse voorzieningen.
Het appartement is ideaal gelegen in de woonwijk Katspolder, dichtbij winkelcentrum Zuidpolder, de prachtige Otheense Kreek en de gezellige kinderboerderij. U heeft hier alles binnen handbereik!

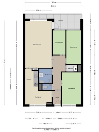
Dit appartement biedt een ruime, lichte woonkamer voorzien van plavuizen vloer en met directe toegang tot het royale balkon van circa 12 m², perfect gesitueerd op de zon. Hier geniet u volop van uw kop koffie of een goed boek in de buitenlucht.

De keuken is voorzien van een eenvoudig keukenblok. Het appartement beschikt over drie fijne slaapkamers (ca. 12 m², 10 m² en 7 m² ) met laminaat vloeren, waardoor het ook zeer geschikt is voor gezinnen of voor wie graag een werk- of hobbyruimte wil creëren.

- Badkamer met douche, wastafel en wasmachineaansluiting
- Separate toiletruimte
- Eigen berging op de begane grond
- Cv-installatie vernieuwd in 2025 (voor de verwarming en warm water voorziening)
- Grotendeels voorzien kunststof kozijnen met dubbele beglazing (met uitzondering van de slaapkamers aan de balkonzijde)
- Servicekosten: € 160,00 per maand (per 1 januari 2026 verhoogd naar € 182,00)
- Het complex beschikt over een vernieuwde liftinstallatie
- Energielabel D

Bent u op zoek naar een comfortabel appartement met veel ruimte, een zonnig balkon en een uitstekende ligging?
Plan dan snel een bezichtiging en laat u verrassen door de mogelijkheden!

Bijzonderheden

Een huis kopen of verkopen doe je misschien maar één keer in je leven. Het is dan ook goed om vooraf te weten dat alles gedurende dit proces volgens de regels verloopt. Het biedingstraject verloopt via "Eerlijk Bieden", het eerste keurmerk voor makelaars dat een eerlijk biedproces garandeert aan zowel de verkoper als de woningzoeker. Zo weet iedereen in een oogopslag dat ze te maken hebben met een betrouwbare makelaar.

De termijn die wordt opgenomen voor eventuele (overeengekomen) ontbindende voorwaarden (bv. Financiering) is in de regel 4 tot 6 weken na het sluiten van de mondelinge wilsovereenkomst.

De waarborgsom/bankgarantie is 10% van de koopsom. De koper dient deze 2 weken ná het vervallen van de ontbindende voorwaarden bij de desbetreffende notaris te deponeren.

Koper is te allen tijde gerechtigd voor eigen rekening een bouwkundige keuring te (laten) verrichten dan wel andere adviseurs te raadplegen teneinde een goed inzicht te verkrijgen over de staat van onderhoud.

Deze informatie is met zorg samengesteld. Mochten er onvolkomenheden in voorkomen kunnen daar geen rechten aan worden ontleend.
Ter bescherming van de belangen van zowel koper als verkoper, wordt uitdrukkelijk gesteld dat een koopovereenkomst met betrekking tot deze onroerende zaak eerst dan tot stand komt nadat koper en verkoper de koopovereenkomst hebben getekend (“schriftelijkheidsvereiste”).

In de koopovereenkomst wordt een niet zelf bewoningsclausule opgenomen. Koper wordt geattendeerd op het feit dat verkoper het verkochte niet zelf heeft gebruikt/bewoond en dat verkoper derhalve koper niet heeft kunnen informeren over eigenschappen van c.q. gebreken aan het verkochte, waarvan verkoper op de hoogte zou zijn geweest als verkoper het verkochte zelf feitelijk had gebruikt. In dit kader zijn partijen uitdrukkelijk overeengekomen dat dergelijke eigenschappen c.q. gebreken voor risico en rekening van koper komen en dat bij de vaststelling van de koopsom hiermee rekening is gehouden.

Kaart

Kenmerken

Overdracht

Referentienummer
06162
Vraagprijs
€ 190.000,- k.k.
Servicekosten
€ 160,-
Inrichting
Niet gestoffeerd
Inrichting
Niet gemeubileerd
Status
Verkocht
Aanvaarding
In overleg
Aangeboden sinds
Dinsdag 8 juli 2025
Laatste wijziging
Zaterdag 18 oktober 2025

Bouw

Type object
Appartement, galerijflat
Woonlaag
2e woonlaag
Soort bouw
Bestaande bouw
Bouwperiode
1972
Dakbedekking
Bitumen
Type dak
Platdak
Isolatievormen
Grotendeels dubbel glas

Oppervlaktes en inhoud

Woonoppervlakte
87 m²
Woonkameroppervlakte
25 m²
Keukenoppervlakte
9,16 m²
Inhoud
285 m³
Oppervlakte externe bergruimte
6 m²
Oppervlakte gebouwgebonden buitenruimte
11 m²

Indeling

Aantal bouwlagen
1
Aantal kamers
4 (waarvan 3 slaapkamers)
Aantal badkamers
1

Locatie

Ligging
In woonwijk

Energieverbruik

Energielabel
D

CV ketel

CV ketel
Intergas
Warmtebron
Gas
Bouwjaar
2025
Combiketel
Ja

Uitrusting

Warm water
CV-ketel
Verwarmingssysteem
Centrale verwarming
Ventilatie methode
Natuurlijke ventilatie
Badkamervoorzieningen
Douche
Wastafel
Heeft schuur/berging
Ja

Vereniging van Eigenaren

Ingeschreven bij de KvK
Ja
Jaarlijkse vergadering
Ja
Periodieke bijdrage
Ja
Reservefonds
Ja
Meer jaren onderhoudsplan
Ja
Onderhoudsverwachting
Ja
Opstal verzekering
Ja

Kadastrale gegevens

Kadastrale aanduiding
Terneuzen N 397
Omvang
Appartementsrecht of complex

Media

Plattegronden

Brochure(s) en overige bijlagen

Witte De Withstraat 35, 4535 AM TERNEUZEN (1) Download